Cadbury Camp Lane, Clapton In Gordano, Bristol - £1,495,000

bedrooms 5 baths 3 receptions 3
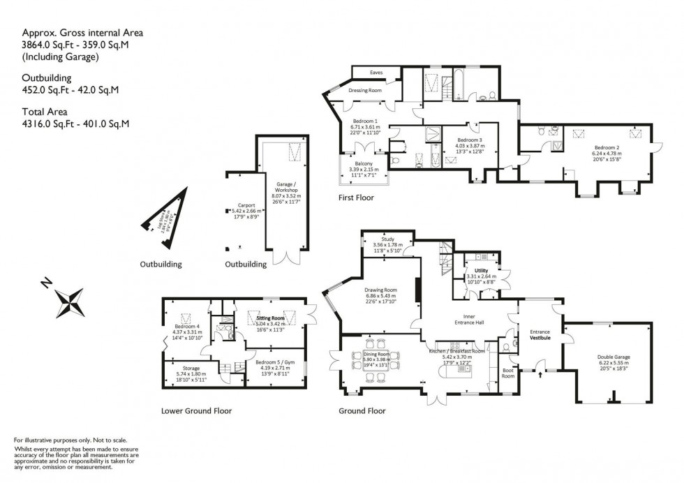
Floorplan for Cadbury Camp Lane, Clapton In Gordano, Bristol
EPC Graph for Cadbury Camp Lane, Clapton In Gordano, Bristol

Request a viewing

This site is protected by reCAPTCHA and the Google Privacy Policy and Terms of Service apply.

PROPERTY DETAILS

  • Magnificent & private wooded setting
  • Impressive detached 5 bedroom family home
  • Plot of approx 4.25 acres
  • Light, airy & spacious accommodation (approx 3,864 sq ft)
  • Expansive patio
  • Extensive landscaped gardens

EXTERNAL

The property benefits from extensive level lawn gardens to the front of the front of the house which enjoy a southerly facing aspect and offer total privacy and seclusion to young children and pets. A large paved patio ideal for BBQ and other family entertainments splits the house from the front garden and includes external lighting. To the rear of the house, is an attractive part gravelled/ lawned garden set behind a timber fence line with built in BBQ and seating area. External covered wood store and boiler house. The extensive area of woodland to the rear of the house is stock fenced with pedestrian access.

An integral double garage is approached off the entrance vestibule and has two up and over doors opening onto the driveway. The garage has power and light with ample room for additional storage. In addition, there is a timber car port with adjoining garage/workshop and ample hard standing.

LOCATION

Location
Residents of Cadbury Camp Lane enjoy superb communications whether travelling by road, rail or air. The lane proves to be one of the most sought-after rural positions on the outskirts of the city within North Somerset. Bristol City Centre is situated approximately 8 miles away with Temple Meads railway station offering a direct link to London Paddington. Nearby Portbury allows access to the M5 at junction 19 thus allowing easy access to the national motorway network. Bristol International Airport can be found within 9 miles to the southwest. Regional shopping centres at Cribbs Causeway and Cabot Circus are both within ten miles and more local amenities including high street banks and supermarkets can be found within three miles at either Nailsea or Portishead. Recreational facilities include a choice of golf courses within five miles as well as David Lloyd and Audley Redwood Leisure Club. The property is ideally located for those pursuing outdoor activities including, walking, golf and horse riding. Lastly, this area is particularly well served for schooling in both the state and private sectors including most locally The Downs School that is within two and a half miles of the subject property.

DIRECTIONS

When in Cadbury Camp Lane (a no through lane) follow the lane for about 0.5 of a mile. The Limit is located on your right-hand side.

OTHER INFORMATION

TENURE: We understand to be freehold and free
RESIDENTS ASSOCIATION: We understand that there is a Residents Association in existence for the general upkeep of Cadbury Camp Lane at an annual charge of £400.00.
SERVICES: We understand the property to have mains water and electricity. Septic tank drainage.
CENTRAL HEATING: An oil-fired boiler located in an outhouse provides for the central heating.
COUNCIL TAX: We understand the property falls within tax band H (North Somerset Council) at £3,400.00 per annum (2019/2020).

GROUND FLOOR ACCOMMODATION

ENTRANCE E VESTIBULE

The front door opens into a large welcoming entrance vestibule with cloakroom off. Attractive terracotta ceramic tiled floor throughout with internal door leading to the inner entrance hall. Door to rear covered walkway and access to integral double garage.

INNER ENTRANCE HALL

L shaped with attractive engineered light oak floor throughout. A carpeted staircase leads to the first-floor landing. Separate cloakroom/WC.

LIVING ROOM

A triangular glazed window overlooks the side garden and adjoining woodland. Contemporary style open fireplace with deep display/ornamental shelf to one side.

KITCHEN/DINER/FAMILY ROOM

A generously proportioned room enjoying an open aspect over the front and side gardens. Double doors to one end open onto a raised deck which in turn leads to the garden.
Comprehensive range of modern base and wall units with attractive granite work surfaces and upstands. A large central Island unit includes sink and integral Miele dishwasher. Timber breakfast bar to one end. AEG four ring induction hob with stainless steel extractor. Integral SANTO fridge with separate AEG freezer unit. Built in AEG double oven with separate microwave and coffee maker. To one end is ample room allowing for dining table and soft seating. Double doors to front garden and extensive patio.

UTILITY

Generously proportioned with door to rear garden. Base and wall units include a Belfast sink. Plumbing for washing machine. Wall cupboards provide for tumble dryer and good storage.

STUDY – reached off entrance hall with engineered light oak floor.

LOWER GROUND FLOOR

The lower ground floor accommodation comprises three separate rooms together with a showroom/WC. This flexible accommodation could provide for additional bedrooms, alternatively gym or family room/snug. A large walk in storage room is reached off the stairwell.

FIRST FLOOR ACCOMMODATION

FIRST FLOOR

A central landing with Velux roof light provides good natural day light.

BEDROOMS

The master bedroom enjoys an open aspect over the front garden with double doors opening onto a sun terrace. En-suite bathroom as well walk in dressing room with fitted shelved and hanging wardrobe. Access to good eaves storage. There are two further double bedrooms, one of which includes an en-suite showroom. A separate family bathroom overlooks the rear.

IMPORTANT NOTE

Hydes Of Bristol and any joint agents give notice that (i) they have no authority to make or give representations or warranties in relation to the property. These particulars do not form part of any offer or contract and must not be relied upon as statements or representations of fact. (ii) Any areas, distances or measurements are approximate. The text, photographs and plans are for guidance only and are not necessarily comprehensive. It should not be
assumed that the property has all the necessary planning, building regulations or other consents and Hydes Of Bristol have not tested any services, equipment or facilities. Purchasers must satisfy themselves by inspection or
otherwise. (iii) In accordance with the consumer protection from unfair trading regulations, please note that the working condition of these services, or kitchen appliances has not been checked by the Agents but at the time of
taking particulars we were informed that all were in working order. Please also note that current government legislation demands that as selling agents for this property, Hydes Of Bristol require written evidence of the origin/source of finance for funding for any prospective purchaser wishing to purchase this property. This confirmation shall be required prior to the vendor entering into any contract of sale and our instructions from the vendor are to this effect.


Important note